株式会社ナクセル

  • お気に入り
  • プライバシーポリシー
  • サイトマップ
株式会社ナクセル

営業時間 / 10:00-21:00 定休日 / なし

東京都世田谷区奥沢2丁目

  • 礼金0
  • ペット相談
  • 駅近

お問い合わせ番号: 13861021

部屋紹介

間取り 間取り詳細 面積 賃料 管理費/共益費 敷金(保証金) 礼金 採光向き
1K 洋室 畳
K 畳
25.37㎡

126,000

12,000円 1ヶ月 無料

物件写真

物件情報は代表的なお部屋を掲載しております。
建物内の別の間取りでも空室がある場合がございます。
ご指名物件の空室待ちなども受付けておりますので、お電話かメールにてスタッフまでお申付下さい。
※写真や図と現況が異なる場合は現況を優先させていただきます。

部屋紹介

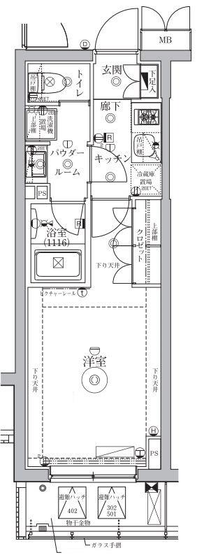
間取り 1K
間取り詳細 洋室 畳 、 K 畳

物件概要・設備
情報登録日:2026年02月14日 情報更新日:2026年02月14日 次回更新予定日:2026年02月28日

物件種別 マンション
物件名 東京都世田谷区奥沢2丁目
物件所在地 東京都世田谷区奥沢2丁目
交通機関
  • 東急目黒線「奥沢駅」より徒歩3分
  • 東急大井町線「自由が丘駅」より徒歩7分
  • 東急大井町線「緑が丘駅」より徒歩8分
  • 東急大井町線「九品仏駅」より徒歩13分
周辺施設
  • ショッピングセンター: 自由が丘スイーツフォレスト 距離410m
  • スーパー: トップ奥沢店 距離405m
  • コンビニ: ローソン自由ケ丘店 距離499m
  • ドラッグストア: マツモトキヨシ自由が丘店 距離417m
  • 銀行: 城南信用金庫自由ヶ丘支店 距離441m
  • 警察署: 田園調布警察署 距離2111m
  • ショッピングセンター: 自由が丘スイーツフォレスト 距離410m
  • スーパー: トップ奥沢店 距離405m
特記事項 ネコ可、ペット相談、保証人不要、保証会社利用可
賃料 126,000円 管理費/共益費 12,000円
敷金 1ヶ月 礼金 無料
フリーレント - 保険 2年 20000円
間取り 1K 面積 25.37㎡
採光向き 契約形態 普通契約 2年
所在階 3階 入居可能日 2026/4/中
総戸数 - 竣工月 2014年4月
建築構造 RC 建物階建 地上5階 
駐車場 近隣 駐車料 35,000円
火災保険 鍵交換代 22,000円
保証会社 要加入 /  その他
諸経費 -
設備 ガス(都市ガス)、インターホン(TVモニター付き)、オートロック、宅配ボックス、通風良好、フローリング、全居室フローリング、玄関ホール、ベランダ・バルコニー、クローゼット、クローゼット数(2)、全居室収納、下駄箱、バス・トイレ別(別室)、シャワー、追い焚き、浴室乾燥機、オートバス、脱衣所、温水洗浄便座、洗面所独立、洗面所にドア、洗濯機置き場(室内)、コンロ口数(2)、コンロ種類(都市ガス)、システムキッチン、エアコン、24H換気システム、CATV、光ファイバー
備考 -

近隣マップ

東京都世田谷区奥沢2丁目 へのお問い合わせ

株式会社ナクセル

03-6805-4555

お問い合せ番号: 13861021

所在地 〒154-0002 東京都世田谷区下馬6丁目21番1号 ラ・ジョリーメゾン201号室
営業時間 10:00-21:00 定休日 なし

お問い合せフォーム

必須お名前
任意フリガナ
必須メールアドレス
任意電話番号
連絡ご希望の時間帯
任意FAX番号
任意郵送 住所
必須お問い合せ内容

個人情報のお取り扱いについて

お問い合わせフォームからお客様が入力された個人情報は、資料送付・電子メール送信・電話連絡などの目的でのみ使用いたします。 また、本サービスを円滑に運用するために、お客様の個人情報をサービスご利用の控えとして一定期間保管いたします。 メールアドレス・電話/FAX番号など、ご記入の内容が不明確でご連絡差し上げる事ができない場合、当社が本サービスを円滑に運用するために必要な範囲において直接確認のご連絡をさせていただく場合がありますのであらかじめご了承ください。 個人情報の取扱い方針については、こちらをご覧ください。

新着お知らせ