株式会社ナクセル

  • お気に入り
  • プライバシーポリシー
  • サイトマップ
株式会社ナクセル

営業時間 / 10時~19時(時間外対応出来る場合あり) 定休日 / 水曜日

東京都目黒区目黒本町1丁目

  • ペット相談

お問い合わせ番号: 12511545

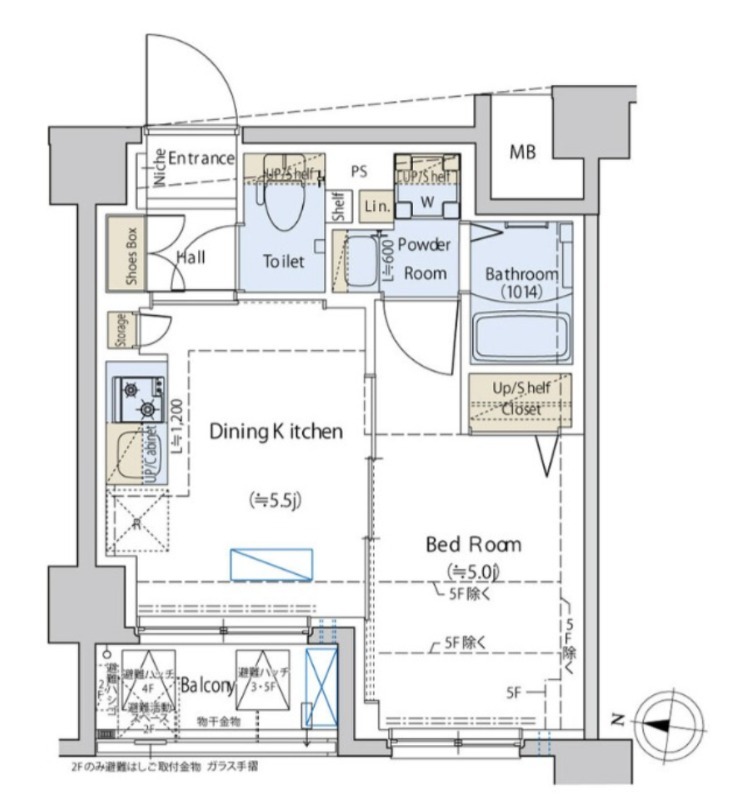
部屋紹介

間取り 間取り詳細 面積 賃料 管理費/共益費 敷金(保証金) 礼金 採光向き
1DK 洋室 5畳
DK 5.5畳
26.15㎡ 成約済 成約済 成約済 成約済 西

物件写真

物件情報は代表的なお部屋を掲載しております。
建物内の別の間取りでも空室がある場合がございます。
ご指名物件の空室待ちなども受付けておりますので、お電話かメールにてスタッフまでお申付下さい。
※写真や図と現況が異なる場合は現況を優先させていただきます。

部屋紹介

間取り 1DK
間取り詳細 洋室 5畳 、 DK 5.5畳

物件概要・設備

物件種別 マンション
物件名 東京都目黒区目黒本町1丁目
物件所在地 東京都目黒区目黒本町1丁目
交通機関
  • 東急東横線「学芸大学駅」より徒歩14分
  • 東急目黒線「武蔵小山駅」より徒歩15分
  • 東急東横線「祐天寺駅」より徒歩20分
  • 東急目黒線「西小山駅」より徒歩19分
周辺施設
  • ショッピングセンター: GAKUDAI KOUKASHITA 距離1102m
  • スーパー: まいばすけっと目黒本町2丁目店 距離255m
  • コンビニ: ローソン目黒本町店 距離333m
  • ドラッグストア: くすりセイジョー目黒本町店 距離700m
  • 銀行: ゆうちょ銀行目黒店 距離324m
  • 警察署: 目黒警察署 距離1964m
特記事項 二人入居可、ペット相談、保証人不要、保証会社利用可
賃料 成約済 管理費/共益費 成約済
敷金 成約済 礼金 成約済
フリーレント - 保険 年 円
間取り 1DK 面積 26.15㎡
採光向き 西 契約形態 普通契約 2年
所在階 3階 入居可能日 即日
総戸数 35戸 竣工月 2025年7月
建築構造 RC 建物階建 地上5階 
駐車場 駐車料 35,000円
火災保険 鍵交換代 成約済
保証会社 要加入 /  その他
諸経費 成約済
設備 ガス(都市ガス)、24時間緊急対応、インターホン(TVモニター付き)、防犯カメラ、ディンプルキー、ダブルロック、オートロック、宅配ボックス、専用ゴミ置き場(あり)、駐輪場、共用ペット専用施設、日当り良好、通風良好、フローリング、全居室フローリング、ベランダ・バルコニー、クローゼット、クローゼット数(1)、全居室収納、下駄箱、天井高下駄箱、バス・トイレ別(別室)、シャワー、浴室乾燥機、脱衣所、温水洗浄便座、洗面所独立、シャンプードレッサー、三面鏡付き洗面化粧台、洗面所にドア、洗濯機置き場(室内)、コンロ口数(2)、コンロ種類(都市ガス)、システムキッチン、エアコン、エアコン台数(1)、24H換気システム、BS、CS、CATV、インターネット使用料無料
備考 -

近隣マップ

東京都目黒区目黒本町1丁目 へのお問い合わせ

株式会社ナクセル

03-6805-4555

お問い合せ番号: 12511545

所在地 〒154-0002 東京都世田谷区下馬6丁目21番1号 ラ・ジョリーメゾン201号室
営業時間 10時~19時(時間外対応出来る場合あり) 定休日 水曜日

新着お知らせ