株式会社ナクセル

  • お気に入り
  • プライバシーポリシー
  • サイトマップ
株式会社ナクセル

営業時間 / 10時~19時(時間外対応出来る場合あり) 定休日 / 水曜日

東京都目黒区自由が丘2丁目

お問い合わせ番号: 11206353

部屋紹介

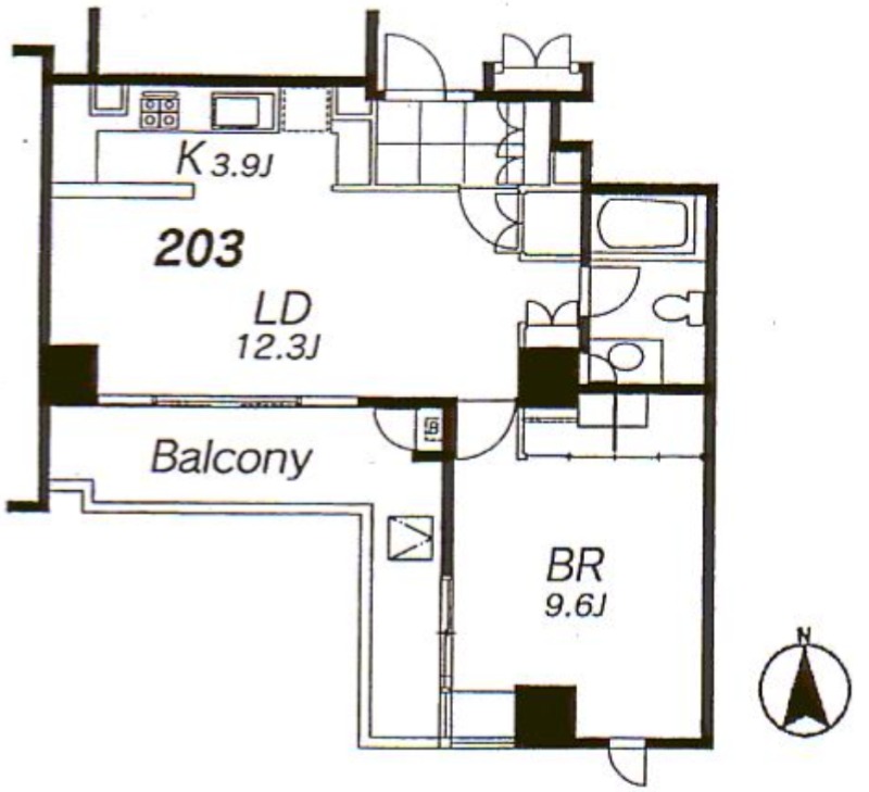
間取り 間取り詳細 面積 賃料 管理費/共益費 敷金(保証金) 礼金 採光向き
1LDK 洋室 9.6畳
LDK 16.2畳
56.88㎡ 成約済 成約済 成約済 成約済

物件写真

物件情報は代表的なお部屋を掲載しております。
建物内の別の間取りでも空室がある場合がございます。
ご指名物件の空室待ちなども受付けておりますので、お電話かメールにてスタッフまでお申付下さい。
※写真や図と現況が異なる場合は現況を優先させていただきます。

部屋紹介

間取り 1LDK
間取り詳細 洋室 9.6畳 、 LDK 16.2畳

物件概要・設備

物件種別 マンション
物件名 東京都目黒区自由が丘2丁目
物件所在地 東京都目黒区自由が丘2丁目
交通機関
  • 東急東横線「自由が丘駅」より徒歩9分
  • 東急東横線「都立大学駅」より徒歩12分
  • 東急目黒線「奥沢駅」より徒歩16分
  • 東急大井町線「九品仏駅」より徒歩19分
周辺施設
  • ショッピングセンター: コレッソ自由が丘 距離431m
  • スーパー: ザ・ガーデン自由が丘自由が丘店 距離228m
  • コンビニ: ナチュラルローソン八雲三丁目店 距離247m
  • ドラッグストア: クリエイトエス・ディー目黒八雲店 距離405m
  • 銀行: みずほ信託銀行自由が丘支店 距離508m
  • 警察署: 碑文谷警察署 距離1485m
特記事項 二人入居可、分譲タイプ、保証人不要、保証会社利用可
賃料 成約済 管理費/共益費 成約済
敷金 成約済 礼金 成約済
フリーレント - 保険 2年 19000円
間取り 1LDK 面積 56.88㎡
採光向き 契約形態 普通契約 2年
所在階 2階 入居可能日 即日
総戸数 - 竣工月 1998年4月
建築構造 RC 建物階建 地上6階 
駐車場 近隣 駐車料 35,000円
火災保険 鍵交換代 成約済
保証会社 要加入 /  その他
諸経費 成約済
設備 ガス(都市ガス)、24時間緊急対応、インターホン(TVモニター付き)、オートロック、日当り良好、2面採光、南向きリビング、デザイナーズ、通風良好、フローリング、ベランダ・バルコニー、クローゼット、クローゼット数(2)、全居室収納、トランクルーム、下駄箱、バス・トイレ別(同室)、シャワー、追い焚き、浴室乾燥機、脱衣所、温水洗浄便座、洗面所独立、洗面所にドア、洗濯機置き場(室内)、コンロ口数(4)、コンロ種類(都市ガス)、システムキッチン、L字型キッチン、エアコン、床暖房、24H換気システム、CATV、光ファイバー
備考

近隣マップ

東京都目黒区自由が丘2丁目 へのお問い合わせ

株式会社ナクセル

03-6805-4555

お問い合せ番号: 11206353

所在地 〒154-0002 東京都世田谷区下馬6丁目21番1号 ラ・ジョリーメゾン201号室
営業時間 10時~19時(時間外対応出来る場合あり) 定休日 水曜日

新着お知らせ