株式会社ナクセル

  • お気に入り
  • プライバシーポリシー
  • サイトマップ
株式会社ナクセル

営業時間 / 10時~19時(時間外対応出来る場合あり) 定休日 / 水曜日

東京都世田谷区深沢4丁目

  • ペット相談

お問い合わせ番号: 10522745

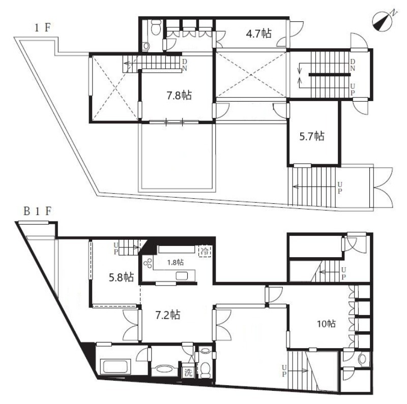
部屋紹介

間取り 間取り詳細 面積 賃料 管理費/共益費 敷金(保証金) 礼金 採光向き
3SLDK 洋室 10畳
洋室 7.8畳
洋室 5.7畳
LDK 13畳
S 4.7畳
131.77㎡ 成約済 成約済 成約済 成約済 南西

物件写真

物件情報は代表的なお部屋を掲載しております。
建物内の別の間取りでも空室がある場合がございます。
ご指名物件の空室待ちなども受付けておりますので、お電話かメールにてスタッフまでお申付下さい。
※写真や図と現況が異なる場合は現況を優先させていただきます。

部屋紹介

間取り 3SLDK
間取り詳細 洋室 10畳 、 洋室 7.8畳 、 洋室 5.7畳 、 LDK 13畳 、 S 4.7畳

物件概要・設備

物件種別 マンション
物件名 東京都世田谷区深沢4丁目
物件所在地 東京都世田谷区深沢4丁目
交通機関
  • 東急東横線「都立大学駅」より徒歩20分
  • 東急田園都市線「駒沢大学駅」より徒歩22分
  • 東急田園都市線「桜新町駅」より徒歩25分
  • 東急東横線「自由が丘駅」より徒歩31分
周辺施設
  • ショッピングセンター: コレッソ自由が丘 距離1782m
  • スーパー: 西友深沢目黒通り店 距離1105m
  • コンビニ: ファミリーマート深沢二丁目店 距離633m
  • ドラッグストア: くすりセイジョー深沢店 距離785m
  • 銀行: 芝信用金庫深沢支店 距離741m
  • 警察署: 碑文谷警察署 距離2581m
特記事項 子供可、二人入居可、ファミリータイプ、ネコ可、ペット相談、保証人不要、保証会社利用可
賃料 成約済 管理費/共益費 成約済
敷金 成約済 礼金 成約済
フリーレント - 保険 2年 18000円
間取り 3SLDK 面積 131.77㎡
採光向き 南西 契約形態 普通契約 2年
所在階 1階 入居可能日 即日
総戸数 - 竣工月 2007年9月
建築構造 RC 建物階建 地上3階  地下1階
駐車場 駐車料 無料
火災保険 鍵交換代 成約済
保証会社 要加入 /  ルームID
諸経費 成約済
設備 ガス(都市ガス)、24時間緊急対応、インターホン(TVモニター付き)、オートロック、宅配ボックス、駐輪場、デザイナーズ、通風良好、フローリング、全居室フローリング、玄関ホール、ベランダ・バルコニー、テラス、クローゼット、クローゼット数(4)、ウォークインクローゼット、全居室収納、下駄箱、バス・トイレ別(別室)、シャワー、追い焚き、浴室乾燥機、オートバス、脱衣所、温水洗浄便座、洗面所独立、三面鏡付き洗面化粧台、洗面所にドア、洗濯機置き場(室内)、コンロ口数(3)、コンロ種類(都市ガス)、グリル、食器洗乾燥機、システムキッチン、カウンターキッチン、L字型キッチン、エアコン、24H換気システム、CATV、光ファイバー
備考

近隣マップ

東京都世田谷区深沢4丁目 へのお問い合わせ

株式会社ナクセル

03-6805-4555

お問い合せ番号: 10522745

所在地 〒154-0002 東京都世田谷区下馬6丁目21番1号 ラ・ジョリーメゾン201号室
営業時間 10時~19時(時間外対応出来る場合あり) 定休日 水曜日

新着お知らせ