株式会社ナクセル

  • お気に入り
  • プライバシーポリシー
  • サイトマップ
株式会社ナクセル

営業時間 / 10時~19時(時間外対応出来る場合あり) 定休日 / 水曜日

東京都世田谷区等々力6丁目

  • 礼金0
  • 敷金0

お問い合わせ番号: 11781111

部屋紹介

間取り 間取り詳細 面積 賃料 管理費/共益費 敷金(保証金) 礼金 採光向き
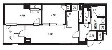
2LDK 洋室 6.1畳
洋室 4.5畳
LDK 8.9畳
50.15㎡ 成約済 成約済 成約済 成約済

物件写真

物件情報は代表的なお部屋を掲載しております。
建物内の別の間取りでも空室がある場合がございます。
ご指名物件の空室待ちなども受付けておりますので、お電話かメールにてスタッフまでお申付下さい。
※写真や図と現況が異なる場合は現況を優先させていただきます。

部屋紹介

間取り 2LDK
間取り詳細 洋室 6.1畳 、 洋室 4.5畳 、 LDK 8.9畳

物件概要・設備

物件種別 マンション
物件名 東京都世田谷区等々力6丁目
物件所在地 東京都世田谷区等々力6丁目
交通機関
  • 東急東横線「自由が丘駅」より徒歩15分
  • 東急大井町線「尾山台駅」より徒歩13分
  • 東急大井町線「九品仏駅」より徒歩12分
  • 東急大井町線「等々力駅」より徒歩17分
周辺施設
  • ショッピングセンター: コレッソ自由が丘 距離833m
  • スーパー: 西友深沢目黒通り店 距離325m
  • コンビニ: セブンイレブン自由が丘学園通り店 距離837m
  • ドラッグストア: クリエイトエス・ディー目黒八雲店 距離634m
  • 銀行: 芝信用金庫深沢支店 距離596m
  • 警察署: 碑文谷警察署 距離2416m
特記事項 子供可、二人入居可、ファミリータイプ、保証人不要、保証会社利用可
賃料 成約済 管理費/共益費 成約済
敷金 成約済 礼金 成約済
フリーレント - 保険 2年 18000円
間取り 2LDK 面積 50.15㎡
採光向き 契約形態 普通契約 2年
所在階 1階 入居可能日 即日
総戸数 - 竣工月 2023年12月
建築構造 RC 建物階建 地上5階  地下1階
駐車場 近隣 駐車料 35,000円
火災保険 鍵交換代 成約済
保証会社 要加入 /  その他
諸経費 成約済
設備 ガス(都市ガス)、24時間緊急対応、インターホン(TVモニター付き)、オートロック、宅配ボックス、専用ゴミ置き場(24Hゴミ出し可)、駐輪場、日当り良好、南向きリビング、通風良好、振分け、フローリング、全居室フローリング、玄関ホール、ベランダ・バルコニー、テラス、クローゼット、クローゼット数(2)、全居室収納、下駄箱、バス・トイレ別(別室)、シャワー、追い焚き、浴室乾燥機、オートバス、脱衣所、温水洗浄便座、洗面所独立、シャンプードレッサー、三面鏡付き洗面化粧台、洗面所にドア、洗濯機置き場(室内)、コンロ口数(2)、コンロ種類(都市ガス)、システムキッチン、カウンターキッチン、エアコン、24H換気システム、CATV、光ファイバー、インターネット使用料無料
備考 -

近隣マップ

東京都世田谷区等々力6丁目 へのお問い合わせ

株式会社ナクセル

03-6805-4555

お問い合せ番号: 11781111

所在地 〒154-0002 東京都世田谷区下馬6丁目21番1号 ラ・ジョリーメゾン201号室
営業時間 10時~19時(時間外対応出来る場合あり) 定休日 水曜日

新着お知らせ