部屋紹介
| 間取り |
間取り詳細 |
面積 |
賃料 |
管理費/共益費 |
敷金(保証金) |
礼金 |
採光向き |
|
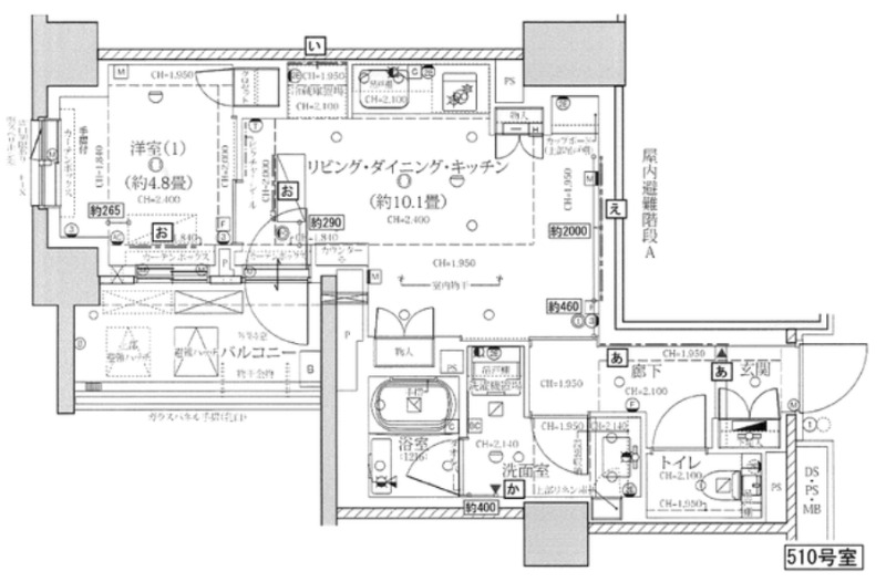
1LDK
|
洋室 4.8畳
LDK 10.1畳
|
41.34㎡
|
成約済
|
成約済
|
成約済
|
成約済
|
南
|
物件写真
物件情報は代表的なお部屋を掲載しております。
建物内の別の間取りでも空室がある場合がございます。
ご指名物件の空室待ちなども受付けておりますので、お電話かメールにてスタッフまでお申付下さい。
※写真や図と現況が異なる場合は現況を優先させていただきます。
部屋紹介
| 間取り |
1LDK |
| 間取り詳細 |
洋室 4.8畳 、 LDK 10.1畳
|
物件概要・設備
| 物件種別 |
マンション |
| 物件名 |
東京都世田谷区奥沢5丁目
|
| 物件所在地 |
東京都世田谷区奥沢5丁目 |
| 交通機関 |
-
東急東横線「自由が丘駅」より徒歩2分
-
東急目黒線「奥沢駅」より徒歩7分
-
東急大井町線「九品仏駅」より徒歩10分
-
東急大井町線「緑が丘駅」より徒歩13分
|
| 周辺施設 |
-
ショッピングセンター: 自由が丘スイーツフォレスト 距離308m
-
スーパー: まいばすけっと自由が丘1丁目店 距離587m
-
コンビニ: ローソン自由ケ丘店 距離385m
-
ドラッグストア: ウエルシア自由が丘店 距離375m
-
銀行: 城南信用金庫自由ヶ丘支店 距離327m
-
警察署: 碑文谷警察署 距離2273m
|
| 特記事項 |
二人入居可、保証人不要、保証会社利用可 |
| 賃料 |
成約済
|
管理費/共益費
|
成約済
|
| 敷金 |
成約済
|
礼金 |
成約済
|
| フリーレント |
- |
保険 |
年 円
|
| 間取り |
1LDK |
面積 |
41.34㎡ |
| 採光向き |
南 |
契約形態 |
普通契約
2年 |
| 所在階 |
5階 |
入居可能日 |
即日 |
| 総戸数 |
- |
竣工月 |
2024年4月 |
| 建築構造 |
RC |
建物階建 |
地上7階 |
| 駐車場 |
近隣 |
駐車料 |
35,000円
|
| 火災保険 |
要 |
鍵交換代 |
成約済
|
| 保証会社 |
要加入 /
その他
|
| 諸経費 |
成約済
|
| 設備 |
ガス(都市ガス)、24時間緊急対応、インターホン(TVモニター付き)、防犯カメラ、ディンプルキー、ダブルロック、オートロック、宅配ボックス、専用ゴミ置き場(24Hゴミ出し可)、駐輪場、バイク置き場、日当り良好、2面採光、角部屋、通風良好、フローリング、全居室フローリング、玄関ホール、ベランダ・バルコニー、クローゼット、クローゼット数(1)、全居室収納、下駄箱、バス・トイレ別(別室)、シャワー、追い焚き、浴室乾燥機、オートバス、脱衣所、温水洗浄便座、洗面所独立、三面鏡付き洗面化粧台、洗面所にドア、洗濯機置き場(室内)、コンロ口数(2)、コンロ種類(都市ガス)、グリル、システムキッチン、エアコン、24H換気システム、CATV、光ファイバー、インターネット使用料無料 |
| 備考 |
|
東京都世田谷区奥沢5丁目
へのお問い合わせ
| 所在地 |
〒154-0002
東京都世田谷区下馬6丁目21番1号 ラ・ジョリーメゾン201号室
|
| 営業時間 |
10時~19時(時間外対応出来る場合あり)
|
定休日 |
水曜日
|