株式会社ナクセル

  • お気に入り
  • プライバシーポリシー
  • サイトマップ
株式会社ナクセル

営業時間 / 10時~19時(時間外対応出来る場合あり) 定休日 / 水曜日

東京都目黒区平町1丁目

  • 敷金0
  • 駅近

お問い合わせ番号: 9779461

部屋紹介

間取り 間取り詳細 面積 賃料 管理費/共益費 敷金(保証金) 礼金 採光向き
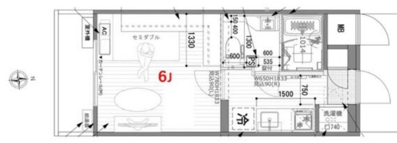
1K 洋室 6畳
K 畳
21.76㎡ 成約済 成約済 成約済 成約済

物件写真

物件情報は代表的なお部屋を掲載しております。
建物内の別の間取りでも空室がある場合がございます。
ご指名物件の空室待ちなども受付けておりますので、お電話かメールにてスタッフまでお申付下さい。
※写真や図と現況が異なる場合は現況を優先させていただきます。

部屋紹介

間取り 1K
間取り詳細 洋室 6畳 、 K 畳

物件概要・設備

物件種別 マンション
物件名 東京都目黒区平町1丁目
物件所在地 東京都目黒区平町1丁目
交通機関
  • 東急東横線「都立大学駅」より徒歩3分
  • 東急大井町線「緑が丘駅」より徒歩17分
  • 東急大井町線「大岡山駅」より徒歩20分
  • 東急東横線「自由が丘駅」より徒歩21分
周辺施設
  • ショッピングセンター: やまや碑文谷店 距離993m
  • スーパー: まいばすけっと都立大学駅南店 距離82m
  • コンビニ: セブンイレブン都立大学駅前店 距離107m
  • ドラッグストア: ココカラファイン都立大学駅南口店 距離184m
  • 銀行: みずほ銀行都立大学駅前支店 距離151m
  • 警察署: 碑文谷警察署 距離658m
特記事項 保証人不要、保証会社利用可
賃料 成約済 管理費/共益費 成約済
敷金 成約済 礼金 成約済
フリーレント - 保険 2年 15000円
間取り 1K 面積 21.76㎡
採光向き 契約形態 普通契約 2年
所在階 3階 入居可能日 即日
総戸数 - 竣工月 1988年5月
建築構造 RC 建物階建 地上3階 
駐車場 近隣 駐車料 35,000円
火災保険 鍵交換代 成約済
保証会社 要加入 /  その他
諸経費 成約済
設備 ガス(都市ガス)、インターホン(TVモニター付き)、宅配ボックス、駐輪場、日当り良好、南向きリビング、通風良好、フローリング、全居室フローリング、ベランダ・バルコニー、クローゼット、クローゼット数(1)、全居室収納、下駄箱、バス・トイレ別(別室)、シャワー、脱衣所、温水洗浄便座、洗面所独立、洗面所にドア、洗濯機置き場(室内)、コンロ口数(2)、コンロ種類(都市ガス)、システムキッチン、エアコン、CATV、光ファイバー
備考 -

近隣マップ

東京都目黒区平町1丁目 へのお問い合わせ

株式会社ナクセル

03-6805-4555

お問い合せ番号: 9779461

所在地 〒154-0002 東京都世田谷区下馬6丁目21番1号 ラ・ジョリーメゾン201号室
営業時間 10時~19時(時間外対応出来る場合あり) 定休日 水曜日

新着お知らせ