株式会社ナクセル

  • お気に入り
  • プライバシーポリシー
  • サイトマップ
株式会社ナクセル

営業時間 / 10時~19時(時間外対応出来る場合あり) 定休日 / 水曜日

東京都世田谷区野沢3丁目

  • 礼金0
  • ペット相談

お問い合わせ番号: 9620523

部屋紹介

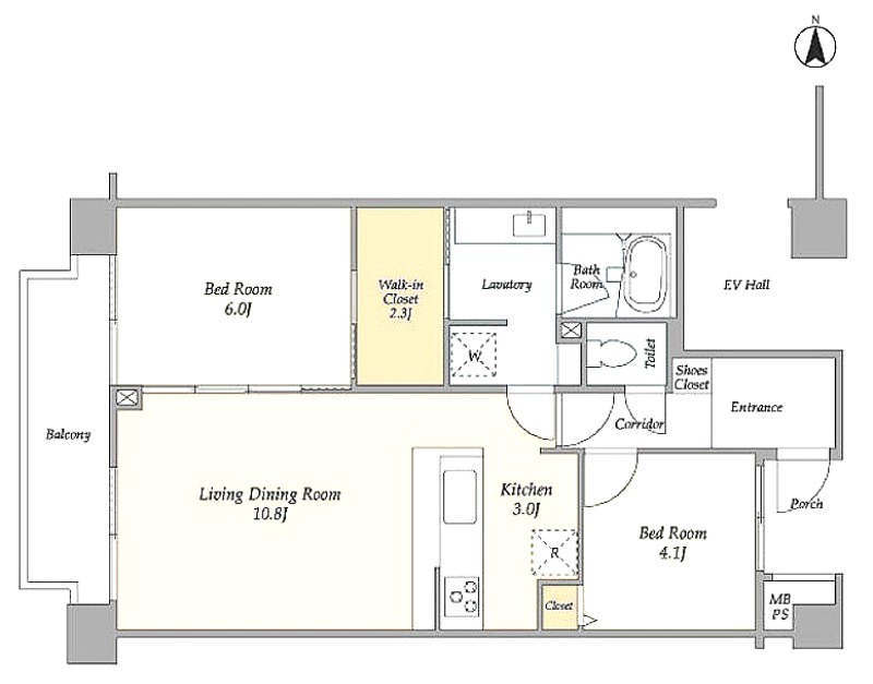
間取り 間取り詳細 面積 賃料 管理費/共益費 敷金(保証金) 礼金 採光向き
2LDK 洋室 6畳
洋室 4.1畳
LDK 13.8畳
64.78㎡ 成約済 成約済 成約済 成約済 西

物件写真

物件情報は代表的なお部屋を掲載しております。
建物内の別の間取りでも空室がある場合がございます。
ご指名物件の空室待ちなども受付けておりますので、お電話かメールにてスタッフまでお申付下さい。
※写真や図と現況が異なる場合は現況を優先させていただきます。

部屋紹介

間取り 2LDK
間取り詳細 洋室 6畳 、 洋室 4.1畳 、 LDK 13.8畳

物件概要・設備

物件種別 マンション
物件名 東京都世田谷区野沢3丁目
物件所在地 東京都世田谷区野沢3丁目
交通機関
  • 東急東横線「学芸大学駅」より徒歩11分
  • 東急東横線「都立大学駅」より徒歩17分
  • 東急田園都市線「駒沢大学駅」より徒歩20分
  • 東急東横線「祐天寺駅」より徒歩23分
周辺施設
  • ショッピングセンター: コルモピア野沢店 距離821m
  • スーパー: 東急ストア駒沢通り野沢店 距離88m
  • コンビニ: ローソン柿の木坂二丁目店 距離101m
  • ドラッグストア: ツルハドラッグ柿の木坂店 距離164m
  • 銀行: さわやか信用金庫学芸大学駅前支店 距離665m
  • 警察署: 碑文谷警察署 距離987m
特記事項 リノベーション、子供可、二人入居可、ファミリータイプ、ネコ可、ペット相談、保証人不要、保証会社利用可
賃料 成約済 管理費/共益費 成約済
敷金 成約済 礼金 成約済
フリーレント - 保険 2年 14660円
間取り 2LDK 面積 64.78㎡
採光向き 西 契約形態 普通契約 2年
所在階 5階 入居可能日 即日
総戸数 - 竣工月 1992年2月
建築構造 RC 建物階建 地上7階  地下1階
駐車場 駐車料 35,000円
火災保険 鍵交換代 成約済
保証会社 要加入 /  オリコフォレントインシュア
諸経費 成約済
設備 ガス(都市ガス)、24時間緊急対応、インターホン(TVモニター付き)、防犯カメラ、オートロック、宅配ボックス、専用ゴミ置き場(あり)、駐輪場、日当り良好、通風良好、振分け、フローリング、全居室フローリング、玄関ホール、ベランダ・バルコニー、クローゼット、クローゼット数(1)、ウォークインクローゼット、ウォークインクローゼット数(1)、ウォークスルークローゼット、全居室収納、下駄箱、天井高下駄箱、バス・トイレ別(別室)、シャワー、追い焚き、浴室乾燥機、オートバス、脱衣所、温水洗浄便座、タンクレストイレ、洗面所独立、三面鏡付き洗面化粧台、洗面所にドア、洗濯機置き場(室内)、コンロ口数(3)、コンロ種類(都市ガス)、グリル、食器洗乾燥機、システムキッチン、カウンターキッチン、エアコン、エアコン台数(全室)、24H換気システム、BS、CS、CATV、光ファイバー
備考

近隣マップ

東京都世田谷区野沢3丁目 へのお問い合わせ

株式会社ナクセル

03-6805-4555

お問い合せ番号: 9620523

所在地 〒154-0002 東京都世田谷区下馬6丁目21番1号 ラ・ジョリーメゾン201号室
営業時間 10時~19時(時間外対応出来る場合あり) 定休日 水曜日

新着お知らせ