株式会社ナクセル

  • お気に入り
  • プライバシーポリシー
  • サイトマップ
株式会社ナクセル

営業時間 / 10時~19時(時間外対応出来る場合あり) 定休日 / 水曜日

東京都目黒区祐天寺2丁目

  • ペット相談
  • 駅近

お問い合わせ番号: 9509924

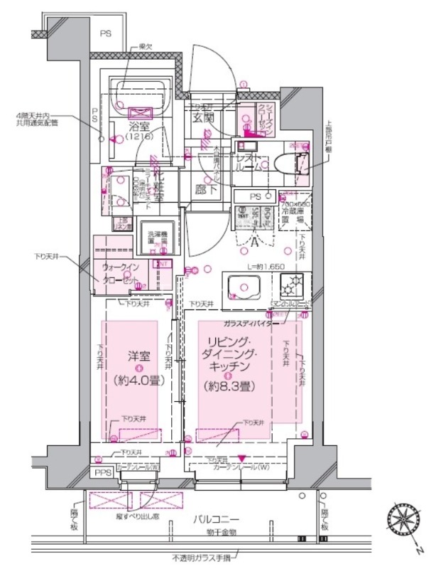
部屋紹介

間取り 間取り詳細 面積 賃料 管理費/共益費 敷金(保証金) 礼金 採光向き
1LDK 洋室 4畳
LDK 8.3畳
33.42㎡ 成約済 成約済 成約済 成約済 北東

物件写真

物件情報は代表的なお部屋を掲載しております。
建物内の別の間取りでも空室がある場合がございます。
ご指名物件の空室待ちなども受付けておりますので、お電話かメールにてスタッフまでお申付下さい。
※写真や図と現況が異なる場合は現況を優先させていただきます。

部屋紹介

間取り 1LDK
間取り詳細 洋室 4畳 、 LDK 8.3畳

物件概要・設備

物件種別 マンション
物件名 東京都目黒区祐天寺2丁目
物件所在地 東京都目黒区祐天寺2丁目
交通機関
  • 東急東横線「祐天寺駅」より徒歩5分
  • 東京メトロ日比谷線「中目黒駅」より徒歩16分
  • 東急東横線「学芸大学駅」より徒歩15分
  • 東急東横線「中目黒駅」より徒歩16分
周辺施設
  • ショッピングセンター: 中目黒GT 距離1123m
  • スーパー: まいばすけっと祐天寺駅通り店 距離197m
  • コンビニ: ナチュラルローソン目黒祐天寺前店 距離266m
  • ドラッグストア: スギ薬局祐天寺店 距離128m
  • 銀行: 城南信用金庫目黒支店 距離266m
  • 警察署: 目黒警察署 距離1310m
特記事項 二人入居可、分譲タイプ、ネコ可、ペット相談、保証人不要、保証会社利用可
賃料 成約済 管理費/共益費 成約済
敷金 成約済 礼金 成約済
フリーレント - 保険 2年 22000円
間取り 1LDK 面積 33.42㎡
採光向き 北東 契約形態 普通契約 2年
所在階 3階 入居可能日 2024/4/中
総戸数 64戸 竣工月 2024年2月
建築構造 RC 建物階建 地上6階 
駐車場 駐車料 35,000円
火災保険 鍵交換代 成約済
保証会社 要加入 /  クレディセゾン
諸経費 成約済
設備 ガス(都市ガス)、24時間緊急対応、インターホン(TVモニター付き)、防犯カメラ、ディンプルキー、オートロック、宅配ボックス、専用ゴミ置き場(あり)、駐輪場、日当り良好、デザイナーズ、通風良好、フローリング、全居室フローリング、玄関ホール、ベランダ・バルコニー、クローゼット、ウォークインクローゼット、ウォークインクローゼット数(1)、全居室収納、下駄箱、天井高下駄箱、バス・トイレ別(別室)、シャワー、追い焚き、浴室乾燥機、オートバス、脱衣所、温水洗浄便座、タンクレストイレ、洗面所独立、洗面所にドア、洗濯機置き場(室内)、コンロ口数(2)、コンロ種類(都市ガス)、グリル、食器洗乾燥機、システムキッチン、カウンターキッチン、エアコン、エアコン台数(全室)、床暖房、24H換気システム、CATV、光ファイバー、インターネット使用料無料
備考

近隣マップ

東京都目黒区祐天寺2丁目 へのお問い合わせ

株式会社ナクセル

03-6805-4555

お問い合せ番号: 9509924

所在地 〒154-0002 東京都世田谷区下馬6丁目21番1号 ラ・ジョリーメゾン201号室
営業時間 10時~19時(時間外対応出来る場合あり) 定休日 水曜日

新着お知らせ