株式会社ナクセル

  • お気に入り
  • プライバシーポリシー
  • サイトマップ
株式会社ナクセル

営業時間 / 10時~19時(時間外対応出来る場合あり) 定休日 / 水曜日

東京都目黒区柿の木坂3丁目

  • 敷金0

お問い合わせ番号: 12576791

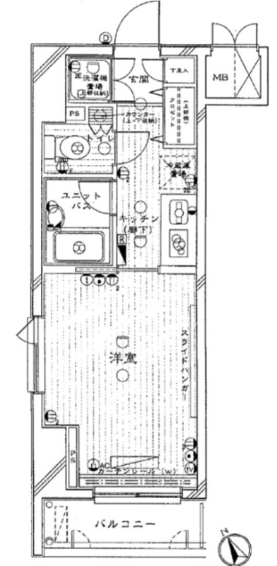
部屋紹介

間取り 間取り詳細 面積 賃料 管理費/共益費 敷金(保証金) 礼金 採光向き
1K 洋室 畳
K 畳
21.09㎡ 成約済 成約済 成約済 成約済 南西

物件写真

物件情報は代表的なお部屋を掲載しております。
建物内の別の間取りでも空室がある場合がございます。
ご指名物件の空室待ちなども受付けておりますので、お電話かメールにてスタッフまでお申付下さい。
※写真や図と現況が異なる場合は現況を優先させていただきます。

部屋紹介

間取り 1K
間取り詳細 洋室 畳 、 K 畳

物件概要・設備

物件種別 マンション
物件名 東京都目黒区柿の木坂3丁目
物件所在地 東京都目黒区柿の木坂3丁目
交通機関
  • 東急東横線「学芸大学駅」より徒歩15分
  • 東急田園都市線「駒沢大学駅」より徒歩17分
  • 東急東横線「都立大学駅」より徒歩19分
  • 東急田園都市線「三軒茶屋駅」より徒歩27分
周辺施設
  • ショッピングセンター: コルモピア野沢店 距離498m
  • スーパー: 東急ストア駒沢通り野沢店 距離357m
  • コンビニ: ローソン柿の木坂二丁目店 距離270m
  • ドラッグストア: ツルハドラッグ柿の木坂店 距離268m
  • 銀行: さわやか信用金庫学芸大学駅前支店 距離933m
  • 警察署: 碑文谷警察署 距離1227m
特記事項 分譲タイプ、保証人不要、保証会社利用可
賃料 成約済 管理費/共益費 成約済
敷金 成約済 礼金 成約済
フリーレント - 保険 2年 21500円
間取り 1K 面積 21.09㎡
採光向き 南西 契約形態 普通契約 2年
所在階 2階 入居可能日 相談
総戸数 - 竣工月 2002年9月
建築構造 RC 建物階建 地上8階 
駐車場 近隣 駐車料 35,000円
火災保険 鍵交換代 成約済
保証会社 要加入 /  その他
諸経費 成約済
設備 ガス(都市ガス)、インターホン(TVモニター付き)、オートロック、宅配ボックス、専用ゴミ置き場(あり)、駐輪場、2面採光、全室2面採光、角部屋、通風良好、フローリング、全居室フローリング、ベランダ・バルコニー、クローゼット、クローゼット数(1)、下駄箱、天井高下駄箱、バス・トイレ別(別室)、シャワー、温水洗浄便座、洗濯機置き場(室内)、コンロ口数(2)、コンロ種類(都市ガス)、システムキッチン、エアコン、BS、CS、CATV、光ファイバー
備考 -

近隣マップ

東京都目黒区柿の木坂3丁目 へのお問い合わせ

株式会社ナクセル

03-6805-4555

お問い合せ番号: 12576791

所在地 〒154-0002 東京都世田谷区下馬6丁目21番1号 ラ・ジョリーメゾン201号室
営業時間 10時~19時(時間外対応出来る場合あり) 定休日 水曜日

新着お知らせ