株式会社ナクセル

  • お気に入り
  • プライバシーポリシー
  • サイトマップ
株式会社ナクセル

営業時間 / 10時~19時(時間外対応出来る場合あり) 定休日 / 水曜日

東京都目黒区中根2丁目

  • ペット相談

お問い合わせ番号: 11111675

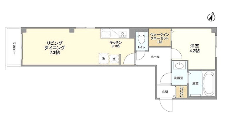
部屋紹介

間取り 間取り詳細 面積 賃料 管理費/共益費 敷金(保証金) 礼金 採光向き
1LDK 洋室 4.2畳
LDK 10.4畳
37.55㎡ 成約済 成約済 成約済 成約済 西

物件写真

物件情報は代表的なお部屋を掲載しております。
建物内の別の間取りでも空室がある場合がございます。
ご指名物件の空室待ちなども受付けておりますので、お電話かメールにてスタッフまでお申付下さい。
※写真や図と現況が異なる場合は現況を優先させていただきます。

部屋紹介

間取り 1LDK
間取り詳細 洋室 4.2畳 、 LDK 10.4畳

物件概要・設備

物件種別 マンション
物件名 東京都目黒区中根2丁目
物件所在地 東京都目黒区中根2丁目
交通機関
  • 東急東横線「都立大学駅」より徒歩9分
  • 東急大井町線「緑が丘駅」より徒歩11分
  • 東急東横線「自由が丘駅」より徒歩14分
  • 東急大井町線「自由が丘駅」より徒歩15分
周辺施設
  • ショッピングセンター: 自由が丘スイーツフォレスト 距離982m
  • スーパー: スーパー文化堂緑ヶ丘店 距離553m
  • コンビニ: ファミリーマート緑が丘一丁目店 距離358m
  • ドラッグストア: ツルハドラッグ目黒中根店 距離521m
  • 銀行: みずほ銀行都立大学駅前支店 距離687m
  • 警察署: 碑文谷警察署 距離1313m
特記事項 二人入居可、ペット相談、保証人不要、保証会社利用可
賃料 成約済 管理費/共益費 成約済
敷金 成約済 礼金 成約済
フリーレント - 保険 2年 15980円
間取り 1LDK 面積 37.55㎡
採光向き 西 契約形態 普通契約 3年
所在階 2階 入居可能日 2025/2/上
総戸数 10戸 竣工月 2019年10月
建築構造 鉄骨 建物階建 地上3階 
駐車場 駐車料 35,000円
火災保険 鍵交換代 成約済
保証会社 要加入 /  レジデンシャルパートナーズ
諸経費 成約済
設備 ガス(都市ガス)、24時間緊急対応、インターホン(TVモニター付き)、防犯カメラ、ディンプルキー、ダブルロック、オートロック、宅配ボックス、専用ゴミ置き場(あり)、日当り良好、角部屋、通風良好、フローリング、全居室フローリング、玄関ホール、ベランダ・バルコニー、クローゼット、ウォークインクローゼット、ウォークインクローゼット数(1)、全居室収納、下駄箱、天井高下駄箱、バス・トイレ別(別室)、シャワー、追い焚き、浴室乾燥機、オートバス、脱衣所、温水洗浄便座、タンクレストイレ、洗面所独立、シャンプードレッサー、三面鏡付き洗面化粧台、洗面所にドア、洗濯機置き場(室内)、コンロ口数(3)、コンロ種類(IH)、グリル、システムキッチン、エアコン、エアコン台数(全室)、24H換気システム、BS、CS、CATV、光ファイバー、インターネット使用料無料
備考

近隣マップ

東京都目黒区中根2丁目 へのお問い合わせ

株式会社ナクセル

03-6805-4555

お問い合せ番号: 11111675

所在地 〒154-0002 東京都世田谷区下馬6丁目21番1号 ラ・ジョリーメゾン201号室
営業時間 10時~19時(時間外対応出来る場合あり) 定休日 水曜日

新着お知らせ