株式会社ナクセル

  • お気に入り
  • プライバシーポリシー
  • サイトマップ
株式会社ナクセル

営業時間 / 10時~19時(時間外対応出来る場合あり) 定休日 / 水曜日

東京都目黒区五本木2丁目

  • 礼金0
  • 敷金0

お問い合わせ番号: 9929085

部屋紹介

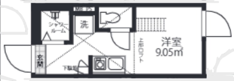
間取り 間取り詳細 面積 賃料 管理費/共益費 敷金(保証金) 礼金 採光向き
ワンルーム 洋室 畳 13.23㎡ 成約済 成約済 成約済 成約済

物件写真

物件情報は代表的なお部屋を掲載しております。
建物内の別の間取りでも空室がある場合がございます。
ご指名物件の空室待ちなども受付けておりますので、お電話かメールにてスタッフまでお申付下さい。
※写真や図と現況が異なる場合は現況を優先させていただきます。

部屋紹介

間取り ワンルーム
間取り詳細 洋室 畳

物件概要・設備

物件種別 アパート
物件名 東京都目黒区五本木2丁目
物件所在地 東京都目黒区五本木2丁目
交通機関
  • 東急東横線「学芸大学駅」より徒歩7分
  • 東急東横線「祐天寺駅」より徒歩10分
  • 東急東横線「中目黒駅」より徒歩25分
  • 東京メトロ日比谷線「中目黒駅」より徒歩25分
周辺施設
  • ショッピングセンター: GAKUDAI KOUKASHITA 距離691m
  • スーパー: まいばすけっと祐天寺駅西店 距離572m
  • コンビニ: セブンイレブン五本木店 距離225m
  • ドラッグストア: トモズ学芸大学店 距離679m
  • 銀行: 目黒信用金庫三谷支店 距離617m
  • 警察署: 碑文谷警察署 距離1693m
特記事項 保証人不要、保証会社利用可
賃料 成約済 管理費/共益費 成約済
敷金 成約済 礼金 成約済
フリーレント - 保険 2年 15000円
間取り ワンルーム 面積 13.23㎡
採光向き 契約形態 普通契約 2年
所在階 2階 入居可能日 相談
総戸数 - 竣工月 2020年11月
建築構造 木造 建物階建 地上2階 
駐車場 近隣 駐車料 35,000円
火災保険 鍵交換代 成約済
保証会社 要加入 /  ジェイリース
諸経費 成約済
設備 ガス(プロパン)、24時間緊急対応、インターホン(TVモニター付き)、防犯カメラ、宅配ボックス、専用ゴミ置き場(あり)、角部屋、通風良好、フローリング、全居室フローリング、ロフト、下駄箱、シャワー、温水洗浄便座、洗濯機置き場(室内)、コンロ口数(1)、コンロ種類(IH)、システムキッチン、エアコン、CATV、光ファイバー、インターネット使用料無料
備考

近隣マップ

東京都目黒区五本木2丁目 へのお問い合わせ

株式会社ナクセル

03-6805-4555

お問い合せ番号: 9929085

所在地 〒154-0002 東京都世田谷区下馬6丁目21番1号 ラ・ジョリーメゾン201号室
営業時間 10時~19時(時間外対応出来る場合あり) 定休日 水曜日

新着お知らせ