株式会社ナクセル

  • お気に入り
  • プライバシーポリシー
  • サイトマップ
株式会社ナクセル

営業時間 / 10時~19時(時間外対応出来る場合あり) 定休日 / 水曜日

東京都目黒区南2丁目

  • 礼金0
  • 敷金0
  • ペット相談

お問い合わせ番号: 9199721

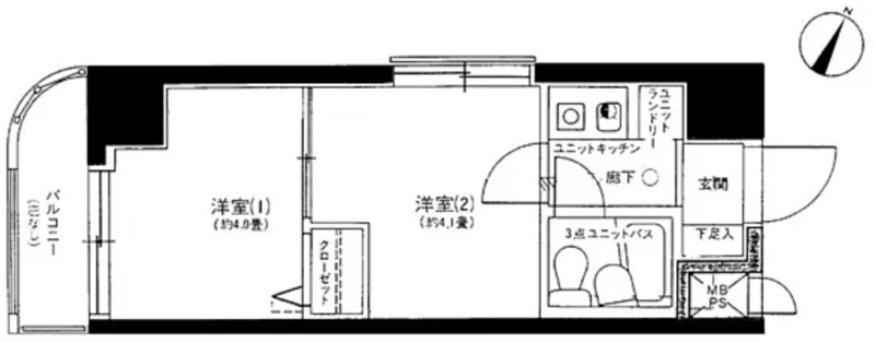
部屋紹介

間取り 間取り詳細 面積 賃料 管理費/共益費 敷金(保証金) 礼金 採光向き
1DK 洋室 畳
DK 畳
20.35㎡ 成約済 成約済 成約済 成約済 西

物件写真

物件情報は代表的なお部屋を掲載しております。
建物内の別の間取りでも空室がある場合がございます。
ご指名物件の空室待ちなども受付けておりますので、お電話かメールにてスタッフまでお申付下さい。
※写真や図と現況が異なる場合は現況を優先させていただきます。

部屋紹介

間取り 1DK
間取り詳細 洋室 畳 、 DK 畳

物件概要・設備

物件種別 マンション
物件名 東京都目黒区南2丁目
物件所在地 東京都目黒区南2丁目
交通機関
  • 東急東横線「都立大学駅」より徒歩10分
  • 東急大井町線「大岡山駅」より徒歩12分
  • 東急目黒線「大岡山駅」より徒歩12分
  • 東急目黒線「洗足駅」より徒歩15分
周辺施設
  • ショッピングセンター: やまや碑文谷店 距離223m
  • スーパー: まいばすけっと大岡山1丁目店 距離623m
  • コンビニ: セブンイレブン目黒南2丁目店 距離338m
  • ドラッグストア: ツルハドラッグ目黒中根店 距離692m
  • 銀行: 城北信用金庫大岡山支店 距離612m
  • 警察署: 碑文谷警察署 距離803m
特記事項 分譲タイプ、ペット相談
賃料 成約済 管理費/共益費 成約済
敷金 成約済 礼金 成約済
フリーレント - 保険 2年 20000円
間取り 1DK 面積 20.35㎡
採光向き 西 契約形態 普通契約 2年
所在階 2階 入居可能日 即日
総戸数 - 竣工月 1992年7月
建築構造 RC 建物階建 地上5階 
駐車場 近隣 駐車料 35,000円
火災保険 鍵交換代 成約済
保証会社 -
諸経費 成約済
設備 ガス(都市ガス)、インターホン(音声)、防犯カメラ、オートロック、宅配ボックス、専用ゴミ置き場(あり)、駐輪場、日当り良好、2面採光、角部屋、通風良好、フローリング、全居室フローリング、ベランダ・バルコニー、クローゼット、全居室収納、下駄箱、バス・トイレ別(同室)、シャワー、洗濯機置き場(室内)、コンロ口数(1)、コンロ種類(IH)、システムキッチン、エアコン、CATV、光ファイバー
備考

近隣マップ

東京都目黒区南2丁目 へのお問い合わせ

株式会社ナクセル

03-6805-4555

お問い合せ番号: 9199721

所在地 〒154-0002 東京都世田谷区下馬6丁目21番1号 ラ・ジョリーメゾン201号室
営業時間 10時~19時(時間外対応出来る場合あり) 定休日 水曜日

新着お知らせ