株式会社ナクセル

  • お気に入り
  • プライバシーポリシー
  • サイトマップ
株式会社ナクセル

営業時間 / 10時~19時(時間外対応出来る場合あり) 定休日 / 水曜日

東京都目黒区碑文谷5丁目

  • ペット相談

お問い合わせ番号: 9199279

部屋紹介

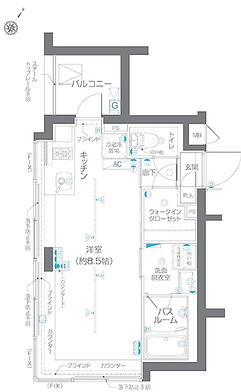
間取り 間取り詳細 面積 賃料 管理費/共益費 敷金(保証金) 礼金 採光向き
ワンルーム 洋室 8.5畳 25.8㎡ 成約済 成約済 成約済 成約済 南東

物件写真

物件情報は代表的なお部屋を掲載しております。
建物内の別の間取りでも空室がある場合がございます。
ご指名物件の空室待ちなども受付けておりますので、お電話かメールにてスタッフまでお申付下さい。
※写真や図と現況が異なる場合は現況を優先させていただきます。

部屋紹介

間取り ワンルーム
間取り詳細 洋室 8.5畳

物件概要・設備

物件種別 マンション
物件名 東京都目黒区碑文谷5丁目
物件所在地 東京都目黒区碑文谷5丁目
交通機関
  • 東急東横線「学芸大学駅」より徒歩10分
  • 東急東横線「都立大学駅」より徒歩10分
  • 東急大井町線「大岡山駅」より徒歩24分
  • 東急目黒線「大岡山駅」より徒歩24分
周辺施設
  • ショッピングセンター: イオンスタイル碑文谷 距離176m
  • スーパー: スーパーオオゼキ碑文谷店 距離130m
  • コンビニ: ローソン柿の木坂店 距離279m
  • ドラッグストア: ココカラファイン都立大学駅前店 距離825m
  • 銀行: 城南信用金庫碑文谷支店 距離168m
  • 警察署: 碑文谷警察署 距離194m
特記事項 分譲タイプ、ネコ可、ペット相談、保証人不要、保証会社利用可
賃料 成約済 管理費/共益費 成約済
敷金 成約済 礼金 成約済
フリーレント - 保険 -
間取り ワンルーム 面積 25.8㎡
採光向き 南東 契約形態 普通契約 2年
所在階 2階 入居可能日 即日
総戸数 - 竣工月 2021年12月
建築構造 RC 建物階建 地上5階 
駐車場 近隣 駐車料 35,000円
火災保険 - 鍵交換代 成約済
保証会社 要加入 /  オリコフォレントインシュア
諸経費 成約済
設備 ガス(都市ガス)、24時間緊急対応、インターホン(TVモニター付き)、防犯カメラ、ディンプルキー、ダブルロック、オートロック、宅配ボックス、専用ゴミ置き場(24Hゴミ出し可)、駐輪場、バイク置き場、共用ペット専用施設、日当り良好、全室2面採光、角部屋、デザイナーズ、通風良好、フローリング、全居室フローリング、玄関ホール、ベランダ・バルコニー、クローゼット、ウォークインクローゼット、ウォークインクローゼット数(1)、全居室収納、下駄箱、天井高下駄箱、バス・トイレ別(別室)、シャワー、追い焚き、浴室乾燥機、オートバス、脱衣所、温水洗浄便座、洗面所独立、洗濯機置き場(室内)、コンロ口数(2)、コンロ種類(都市ガス)、システムキッチン、エアコン、エアコン台数(1)、24H換気システム、CATV、光ファイバー
備考

近隣マップ

東京都目黒区碑文谷5丁目 へのお問い合わせ

株式会社ナクセル

03-6805-4555

お問い合せ番号: 9199279

所在地 〒154-0002 東京都世田谷区下馬6丁目21番1号 ラ・ジョリーメゾン201号室
営業時間 10時~19時(時間外対応出来る場合あり) 定休日 水曜日

新着お知らせ