部屋紹介
| 間取り |
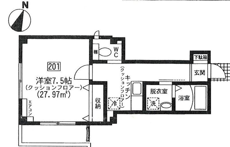
間取り詳細 |
面積 |
賃料 |
管理費/共益費 |
敷金(保証金) |
礼金 |
採光向き |
|
1K
|
洋室 7.5畳
K 畳
|
27.97㎡
|
成約済
|
成約済
|
成約済
|
成約済
|
南東
|
物件写真
物件情報は代表的なお部屋を掲載しております。
建物内の別の間取りでも空室がある場合がございます。
ご指名物件の空室待ちなども受付けておりますので、お電話かメールにてスタッフまでお申付下さい。
※写真や図と現況が異なる場合は現況を優先させていただきます。
部屋紹介
| 間取り |
1K |
| 間取り詳細 |
洋室 7.5畳 、 K 畳
|
物件概要・設備
| 物件種別 |
マンション |
| 物件名 |
東京都世田谷区下馬1丁目
|
| 物件所在地 |
東京都世田谷区下馬1丁目 |
| 交通機関 |
-
東急東横線「祐天寺駅」より徒歩13分
-
東急田園都市線「三軒茶屋駅」より徒歩14分
-
東急東横線「学芸大学駅」より徒歩20分
|
| 周辺施設 |
-
ショッピングセンター: ファッションセンターしまむら三軒茶屋店 距離1502m
-
スーパー: サミットストア下馬店 距離285m
-
コンビニ: セブンイレブン下馬1丁目店 距離274m
-
ドラッグストア: クリエイトエス・ディー世田谷下馬店 距離243m
-
銀行: 昭和信用金庫三軒茶屋支店 距離1036m
-
警察署: 世田谷警察署 距離1394m
|
| 特記事項 |
保証人不要、保証会社利用可 |
| 賃料 |
成約済
|
管理費/共益費
|
成約済
|
| 敷金 |
成約済
|
礼金 |
成約済
|
| フリーレント |
- |
保険 |
2年 20000円
|
| 間取り |
1K |
面積 |
27.97㎡ |
| 採光向き |
南東 |
契約形態 |
普通契約
2年 |
| 所在階 |
2階 |
入居可能日 |
- |
| 総戸数 |
- |
竣工月 |
2002年3月 |
| 建築構造 |
鉄骨 |
建物階建 |
地上3階 |
| 駐車場 |
近隣 |
駐車料 |
35,000円
|
| 火災保険 |
要 |
鍵交換代 |
成約済
|
| 保証会社 |
要加入 /
その他
|
| 諸経費 |
成約済
|
| 設備 |
ガス(都市ガス)、24時間緊急対応、インターホン(TVモニター付き)、駐輪場、日当り良好、2面採光、全室2面採光、角部屋、通風良好、フローリング、クッションフロア、ベランダ・バルコニー、クローゼット、下駄箱、バス・トイレ別(別室)、シャワー、脱衣所、洗面所独立、洗濯機置き場(室内)、コンロ口数(2)、コンロ種類(都市ガス)、エアコン、24H換気システム、CATV、光ファイバー |
| 備考 |
|
東京都世田谷区下馬1丁目
へのお問い合わせ
| 所在地 |
〒154-0002
東京都世田谷区下馬6丁目21番1号 ラ・ジョリーメゾン201号室
|
| 営業時間 |
10時~19時(時間外対応出来る場合あり)
|
定休日 |
水曜日
|